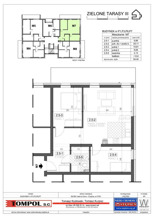
Mieszkanie M 7 - Blok P 3
- Numer: 7
- Balkon: Tak
- Piętro: 1
- Ilość pokoi: 3
- Powierzchnia: 59,40
- Cena: 291000
- Wolne: Nie
-
Opis mieszkania:
Lokal usytuowany na piętrze składający się z dwuch sypialni, salonu połączonego z aneksem kuchennym, przedpokoju i łazienki.
Do mieszkania przynależy duży balkon z widokiem na góry
Orientacja: południowy - zachód
Budynek wyposażony w windę, wideodomofon, monitoring, instalację TV-SAT
Miejsca parkingowe zlokalizowane w działce drogowej.
